Home
Rent
Buy
Exclusives
News
About
Contact
Agents
Careers
List With Us
×
Welcome back!
Email
Password
Sign In
Signing in...
Forgot password
New to Avenues New York - Real Estate NYC Brokerage?
Create an account
×
Create an account
First Name
Last Name
Email
Password
Sign Up
Signing up...
Already have an account?
Sign in
×
Forgot Password
Email
Get New Password
Sending...
×
Reset Password
New Password
Hint: The password should be at least seven characters long. To make it stronger, use upper and lower case letters, numbers, and symbols like ! " ? $ % ^ & ).
Reset Password
Setting new password...
Murray Hill
Murray Hill
Share
Facebook
Twitter
Pinterest
LinkedIn
1
BD
1
BA
0.00
SF
$3,475
/mo
View Photos
Key Details
Status
For Rent
Listing ID
967537
Exclusive listing?
No
Overview
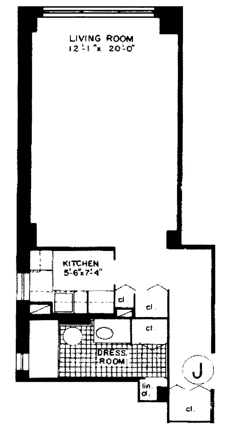
This beautiful studio has an amazing space, window street view .
Features :
small window facing the living area
dishwasher
microwave
two closets
1 bathroom.
Amenties
doorman 24/hour
fitness room 24/hour
elevator
laundry room
Building Amenities
On-site Laundry
Fitness Center/Gym
Elevator
Doorman
Apartment Amenities
Walk in Closet(s)
High Ceilings
Dishwasher
Explore the Area
Transportation
Restaurants
Shopping
Cafes & Bars
Arts & Entertainment
Fitness
Listed By
Stela Tata
Stela@avenuesny.com
Contact Agent
×
Request Info
First Name
Last Name
Email
Phone (optional)
Message
Hi, I would like more information about Murray Hill.
Hi, I would like more information about Murray Hill.
Send Message
Sending message...